APPARTEMENT AA
Rénovation d'un appartement en centre historique
Montpellier - 34
Rénovation totale d'un appartement
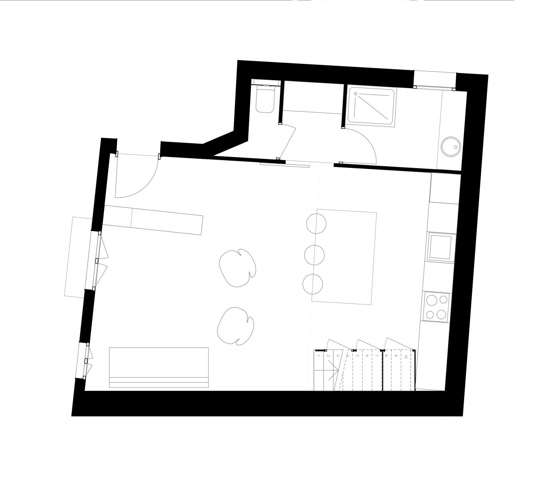
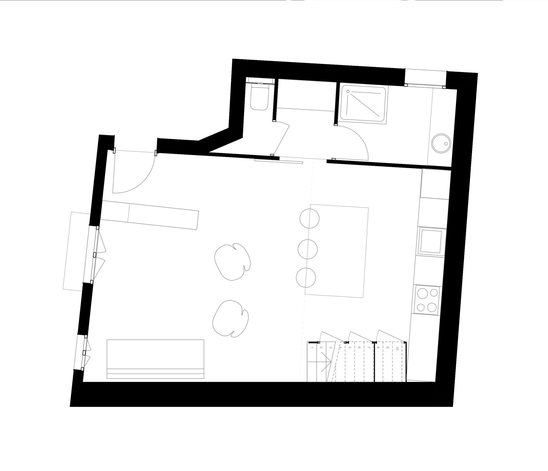
Dans une étroite rue du quartier St Roch, au dernier étage d'un immeuble du XVIII, cerné par les vis à vis, l'appartement existant souffrait d'un manque de lumière.
Menaçant de s'effondré, le toit a été révisé entièrement. Cette révision a permis d'augmenter la pente de toit pour garantir la bonne mise en œuvre d'ouvertures afin d'apporter plus de lumière et de confort sur la mezzanine. La parois translucide de la chambre en mezzanine permet à la fois de la dissimuler dans le volume de l'appartement mais elle permet aussi le passage de la lumière sur le séjour.
Avec l'amicale collaboration de la serrurerie Bonniol, nous avons pu aménager la séquence d'entrée avec une légère étagère. Cet ameublement permet aussi le passage de la lumière et la bonne mise à distance de l'entrée par rapport au salon. L'espace cuisine, avec son généreux ilot central, reste le cœur de l'espace de vie.
| MAITRISE D'OUVRAGE | Privée |
| SURFACE | 53 m² |
| MONTANT DES TRAVAUX | 45 000 € HT |
| MISSION | Complète |
| LIVRAISON | 2017 |
















